>
MusterhausfinderMusterhausfinder Unsere HäuserUnsere Häuser Katalog bestellenKatalog bestellen Kontakt aufnehmenKontakt aufnehmen

Über den Grundriss Baupartner gefunden

Anne und Andreas haben ihr Friesenhaus mit klaren Vorstellungen geplant

 

„Wir kamen von einem eher frustrierenden Hausberatungstermin, als wir per Zufall einen Friesenhausgrundriss im Internet fanden, der genau unseren Vorstellungen entsprach“, erzählt Anne. Nach kurzer Recherche fanden die angehenden Bauherren heraus, dass es ein Haus von ECO System HAUS war und drängten auf einen sofortigen Gesprächstermin. Kundenberater Kim Michael Hansen hatte zunächst nur eine halbe Stunde Zeit, aber das erste Gespräch gab die Entscheidung, sich für ECO als Baupartner zu entscheiden. 

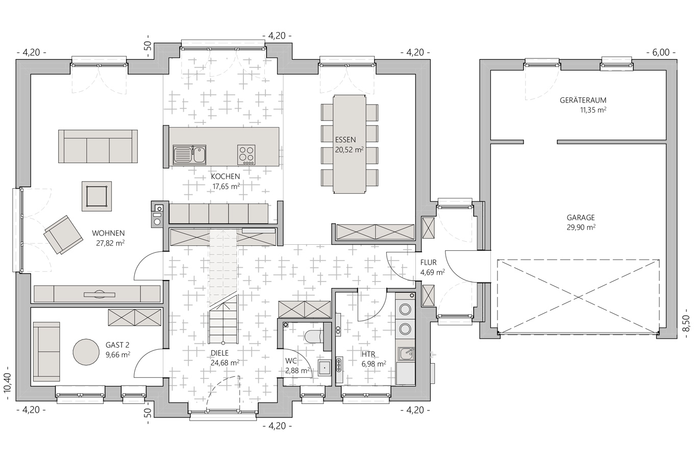
Man war sich sympathisch und der Friesenhausgrundriss mit der freistehenden Treppe im Eingangsbereich und der offenen, in der Mitte des Hauses gelegenen Küche unterschied sich deutlich von anderen. Die Vorteile einer freien Raum- und Grundrissaufteilung waren ein weiterer Pluspunkt. „Wir hatten den Eindruck, dass auch der Architekt und die Bauzeichnerin richtig Lust hatten, die Hausplanung zu entwickeln. Es gab viele kreative Gespräche “, erzählt die Personalreferentin und zweifache Mutter.

Entstanden ist für Andreas, Anne und ihre zwei kleinen Töchter Frida und Alma ein Friesenhaus mit 224 qm und einer Doppelgarage mit kleiner Werkstatt. Der Clou ist hier der kleine Verbindungsflur zwischen Haus und Garage, der mit zwei verglasten Türen auch den direkten Weg von der Vorderseite in den Garten zulässt. Erst von hier gelangt man über einen Flur am Hauswirtschafts- und Haustechnikraum vorbei in die eigentliche Diele und den Eingangsbereich des Massivhauses. Auch im Detail hieß das Motto „Weg vom Standard“ und dafür erhielten sie von ECO sehr viel Freiraum. So wurden zum Beispiel die Badfliesen aus Spanien geordert, die dem Paar zuvor auf einem Foto gefielen.

Bauherr Andreas kehrte mit dem Bau des Traumhauses von Kiel in seine Heimatregion Flensburg zurück, wo er sich mit seiner Frau um das 850 qm große Grundstück beworben hatte. Der IT-Leiter schlug vor, dass auch Annes Eltern aus Hamburg nicht zu weit von der Tochter wohnen sollten, aber die Wohnflächenwünsche beider Bauparteien wären für ein Mehrgenerationenhaus ungeeignet gewesen. Die Schwiegereltern bewarben sich stattdessen um ein Grundstück in der Nachbarschaft und bauten mit ECO System HAUS einen seniorengerechten Bungalow. Ein Jahr nach dem ersten Gespräch und verschiedenen Planungs- und Bauschritten konnten die Friesenhausbauherren und die Bungalowbauherren ihre Einweihungen feiern.

„Wir sind interimsweise zur Miete in die Nähe der Baustelle gezogen, denn es war uns wichtig, beim Bau unseres Hauses vor Ort zu sein. So waren wir fast jeden Tag auf der Baustelle“, erzählt Anne. „Die Abstimmung mit Bauleiter Mathias Greisen und den ausführenden Firmen hat sehr gut geklappt. Wir haben mit dem Bau unseres Hauses alles richtig entschieden“. 
 

Über den Grundriss Baupartner gefunden

Galerie

Unsere virtuellen Rundgänge

ECO SYSTEM HAUS

Folgen Sie uns

Musterhausfinder

Besuchen Sie uns

Finden Sie hier unsere Musterhäuser in Ihrer Nähe und kommen Sie uns besuchen! Erleben Sie hautnah die Qualität und Ausstattung Ihres ECO System HAUSES.

Beraten lassen

Immer für Sie da

Unser Team aus Beraterinnen und Beratern ist deutschlandweit für Sie im Einsatz – auch in Ihrer Nähe.

Wir sind im Februar 2020 in unser Haus eingezogen. ECO System Haus bewerte ich als sehr seriöse und kompetente Baufirma. Herr Kim Hansen war die ganze Zeit über ein engagierter, freundlicher Ansprechpartner, der immer gut erreichbar war und geduldig unsere Wünsche entgegengenommen hat. Nacharbeiten nach der Hausübergabe wurden schnell terminiert und erledigt. Insgesamt sind wir sehr zufrieden.

Wir haben mit Eco unser Traumhaus gebaut und sind durchweg zufrieden. Beginnend mit der Beratung durch Herrn Kim Hansen, über die Planung durch Frau Müller bis hin zu unserem Bauleiter Herrn Petersen, haben wir uns stets gut aufgehoben und beraten gefühlt. Wir werden uns immer gerne an diese spannende und aufregende Zeit des Hausbaus mit Eco System Haus zurück erinnern. Vielen Dank und weiterhin alles Gute an das gesamte Eco Team :)

Wir haben vor 6 Jahren mit ECO gebaut und wir sind nach wie vor super Zufrieden. Alles hat geklappt, die Fristen wurden eingehalten. Mit Kim Hansen hatten wir jederzeit einen Ansprechpartner vor Ort und fühlten uns sehr gut aufgehoben. Wir würden jeder Zeit wieder mit Eco bauen.

Wir haben mit ECO System Haus sehr gute Erfahrungen gemacht und würden jederzeit wieder mit ECO Systemhaus bauen. Von uns gibt es eine klare Empfehlung für diesen Bauträger. Für uns war die Entscheidung auch ein Bauchgefühl, was durch den Verkäufer Herrn Kim Michael Hansen, sehr positiv beeinflusst wurde. In ihm hatten wir immer einen guten und vertrauensvollen Ansprechpartner.

ECO System Haus, immer wieder! Weil nicht nur die Qualität stimmt, sondern auch das menschliche Miteinander und die Art und Weise Differenzen und unterschiedliche Sichtweisen zu klären. Für unser Haus hätten wir keinen besseren Bauleiter wie Herrn Seelig und keine bessere Verkäuferin wie Frau Berg (Senior) haben können. Vielen Dank!

Auf Regina Zündorf war bisher immer Verlass. Egal was man für Sorgen und Nöte hat, Regina kümmert sich auch im Urlaub. So konnten wir bei der Festpreisanpassung, eine faire und für alle eine zufriedenstellende Lösung finden.
Wir können es kaum erwarten in unser Traumhaus zu ziehen.

Regina Zündorf als Verkäuferin und und Ansprechpartner sowie Michael Seelig als Bauleiter und Ansprechpartner sind die Besten.
Eine bessere Betreuung hätten wir uns nicht wünschen können. Es lief alles Hand in Hand und es wurde alles zeitnah geklärt und besprochen wenn Fragen waren. Dream Team!!!!! ;-))

Sehr kompetente und freundliche Beratung! Wir fühlen uns sehr wohl bei Frau Krause und freuen uns, dass wir unser Traumhaus mit eco system haus bauen werden. Wir sind uns sicher, dass wir die richtige Entscheidung getroffen haben. Wer das maximum für sein Traum erhalten möchte, ist hier genau richtig.

Wir bauen unseren Traum vom Haus zusammen mit ECO Bau und sind rundherum zufrieden. Schnelle Abwicklung, wenn ich anrufe weiß man wer ich bin, lösungsorientiert und professionell.

Das Norderstedter Büro von ECO Systemhaus bekommt von uns 5 Sterne und einen DICKEN EXTRA STERN speziell für Herrn Belger, der uns von Anfang an mit kompetenter Beratung und persönlichem Engagement zur Seite stand. Bereits bei der ersten Kontaktaufnahme war uns sehr schnell klar das wir hier richtig sind!

Prädikat: Empfehlenswert

Wir wurden heute Nachmittag von Herrn Danilo Belger beraten. Obwohl wir leider recht früh festgestellt haben, dass wir preislich nicht zusammen kommen, hat sich Herr Belger trotzdem noch sehr viel Zeit genommen, um unsere Fragen bzgl. Hausbau zu beantworten und uns weitere Tipps mit auf den Weg zu geben. Wir sind von dem Beratungsgespräch begeistert und finden es sehr schade, dass wir budgetbedingt unser Traumhaus nicht von Eco System Haus umsetzen lassen können.

Wir haben unser Haus bei ECO unterschrieben und sind bisher sehr zufrieden - einen großen Anteil daran trägt auch Herr Belger, der uns jederzeit mit all seiner Erfahrung, Kompetenz und Beratung zur Seite steht!

Wir haben 2017- 2018 mit ECO System Haus ein Haus gebaut. Herr Belger war für uns jederzeit erreichbar und hat sich immer sofort um unsere Probleme gekümmert. Wir haben uns von Ihm sehr gut betreut gefühlt und können ihn uneingeschränkt weiterempfehlen.

Wir haben vor 7Jahren mit ECO gebaut und wir sind immer noch zufrieden. Herr Belger war damals unser Verkaufsberater. Er hat uns gut und fair beraten und stand uns während der Bausphase immer mit Rat und Tat zur Seite.
ECO Haus würden wir jederzeit weiter empfehlen.

Wir haben uns mit verschiedenen Hausbauunternehmen auseinandergesetzt. Schlussendlich fiel 2019 unsere Entscheidung für ECO System HAUS. Ausschlaggebend war die freundliche und fachlich kompetente Beratung von Frau Steltzer. Das Angebot hat uns sehr zugesagt und unsere Wünsche wurden alle Berücksichtigt.

ECO System Haus GmbH ist sehr zu empfehlen beim Hausbau.
Ich fühlte mich gut angenommen. Bei Fragen (auch den einfachsten) hat mir Frau Steltzer zeitnah geantwortet. Alles in allem hat sehr gut geklappt.

Sehr zu empfehlen! Die Gespräche mit Frau Steltzer waren immer sehr nett und kompetent. Wir haben uns stets gut beraten gefühlt. =)

Top Unternehmen und fachlich sehr gute und kompetente Beratung durch Frau Steltzer. Wir würden uns jederzeit wieder für den Hausbau mit ECO und Frau Steltzer entscheiden, dass hat unser Sachverständiger ebenfalls bestätigt.

Nach einem gutem Jahr in der eigenen Immobilie können wir Eco-Haus und die Begleitung durch Herr Schumann weiterempfehlen, auch wenn natürlich bis dorthin während der Bauphase einige Hürden, Höhen und Tiefen gemeinsam zu nehmen sind.

Super Beratung von der ersten Idee bis hin zur Umsetzung. Wir könnenen die ECO System Haus GmbH und vor allem die Beratung durch Hr. Schumann aus eigenen Erfahrungen nur wärmstens weiterempfehlen.

Vom Erstkontakt bis zum fertigen Haus waren und sind wir voll zufrieden. Wir als Haus-Eigentümer können ECO System HAUS nur weiterempfehlen.

Wir haben mit ECO System Haus ein 150 m2 EFH (Vario) gebaut. Vom ersten Beratungsgespräch bis zur Bauabnahme haben wir uns immer gut aufgehoben gefühlt. Unser Bauleiter Herr Voß hat immer alle Fragen zeitnah beantwortet (auch für Baulaien verständlich) und er war auch telefonisch gut zu erreichen. Wenn er mal nicht an Telefon konnte, erfolgte der Rückruf innerhalb weniger Minuten. Wir freuen uns jeden Tag über das Ergebnis und sind sehr zufrieden mit unserem Haus :)

Erstklassige Beratung. Herr Glöe nimmt sich viel Zeit und gibt wertvolle Tipps.

Sehr große Auswahl an Verblendern und Dachsteinen. Hochwertige Sanitärobjekte und Haustechnik.

Erbaut wird das Haus von regionalen Handwerkern. Das schafft Nähe und Vertrauen.

Nur zu empfehlen! Wir sind derzeit in der Planung unseres Traumhauses und jede Frage wird von Herrn Belger kompetent und schnell beantwortet. Wir fühlen uns super aufgehoben.

katalog_w__2_.svg
Katalog bestellen - online oder per Post